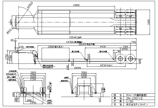
フレーム伸縮セミトレーラー

DN-282VD DN-282VD
伸び縮み部分の固定はS45Cの高周波焼入れのピンを使用し、
油圧シリンダーでロックします。
伸び縮みの距離は0o、2550o、3550oの3段階に設定可能です
(ロック位置は設計時に変更可能です)
諸元表(PDF)
戻る